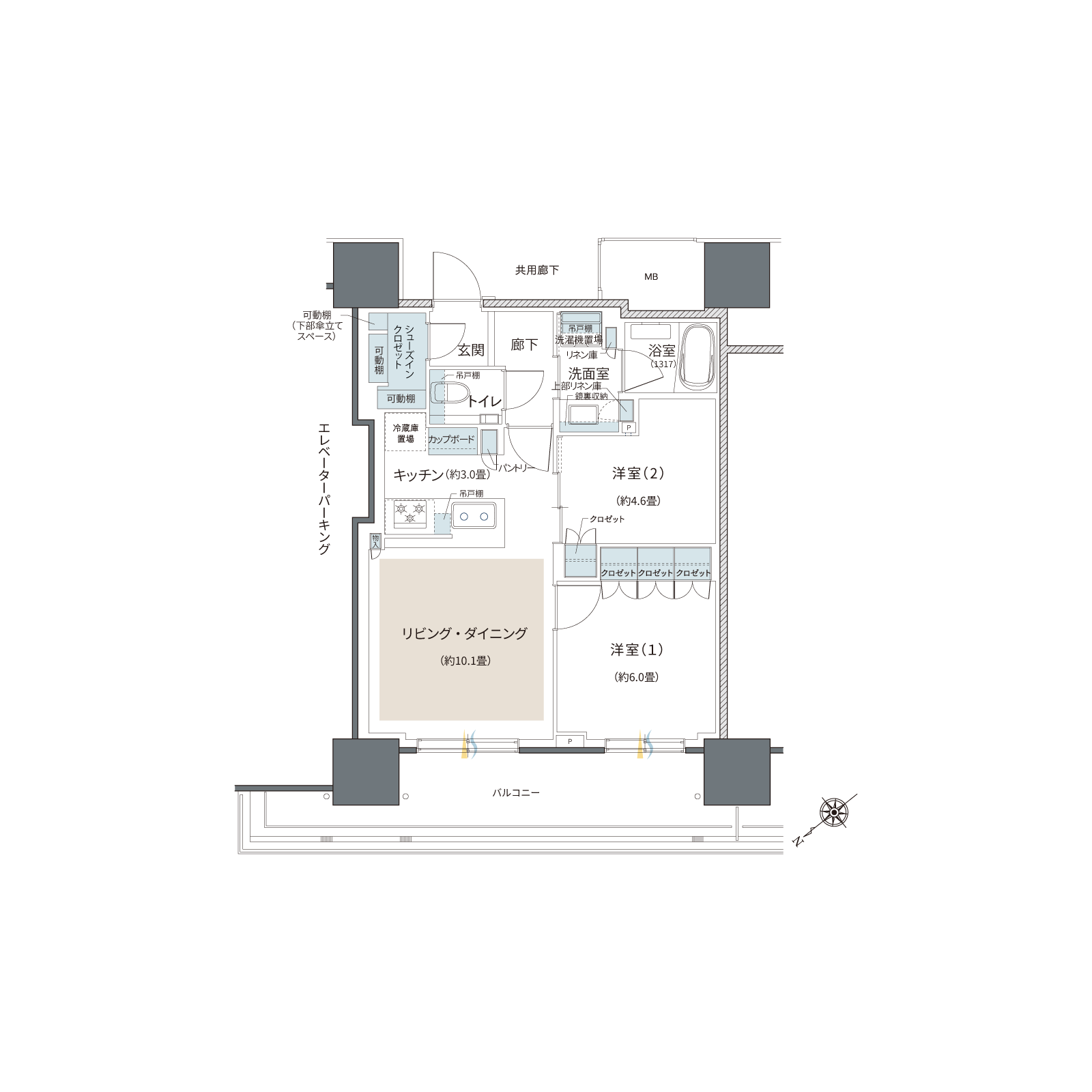
55Htype 2LDK+SIC 専有面積 55.19 バルコニー面積 14.94㎡(6~16階)   18.16㎡(5階)

SIC:シューズインクロゼット

家具付き図面説明テキスト

セレクトプラン1説明テキスト

特長

スタイルに合わせた寛ぎを映し出す2LDKプラン

◎大型シューズインクロゼットや洋室(1)の3連クロゼット、物入れなどで収納力を確保
◎家族の顔を見ながら料理ができる対面式キッチン
◎洋室(2)は空間を有効活用でき使い勝手のよい引き戸を採用

概要

プラン 55H Type
間取りタイプ 2LDK+SIC
専有面積 55.19㎡
バルコニー面積 14.94㎡(6~16階)、18.16㎡(5階)

※掲載の間取図は、計画段階の図面を基に描き起こしたもので施工上の都合等により変更が生じる場合があります。最新の図面集でご確認ください。

間取り図拡大

建物一覧図

間取り一覧へ戻る
物件エントリー 来場予約

Brillia Tower 浅草柳橋
ご来場予約受付中 
5月下旬より登録受付開始