家具付き図面説明テキスト
セレクトプラン1説明テキスト




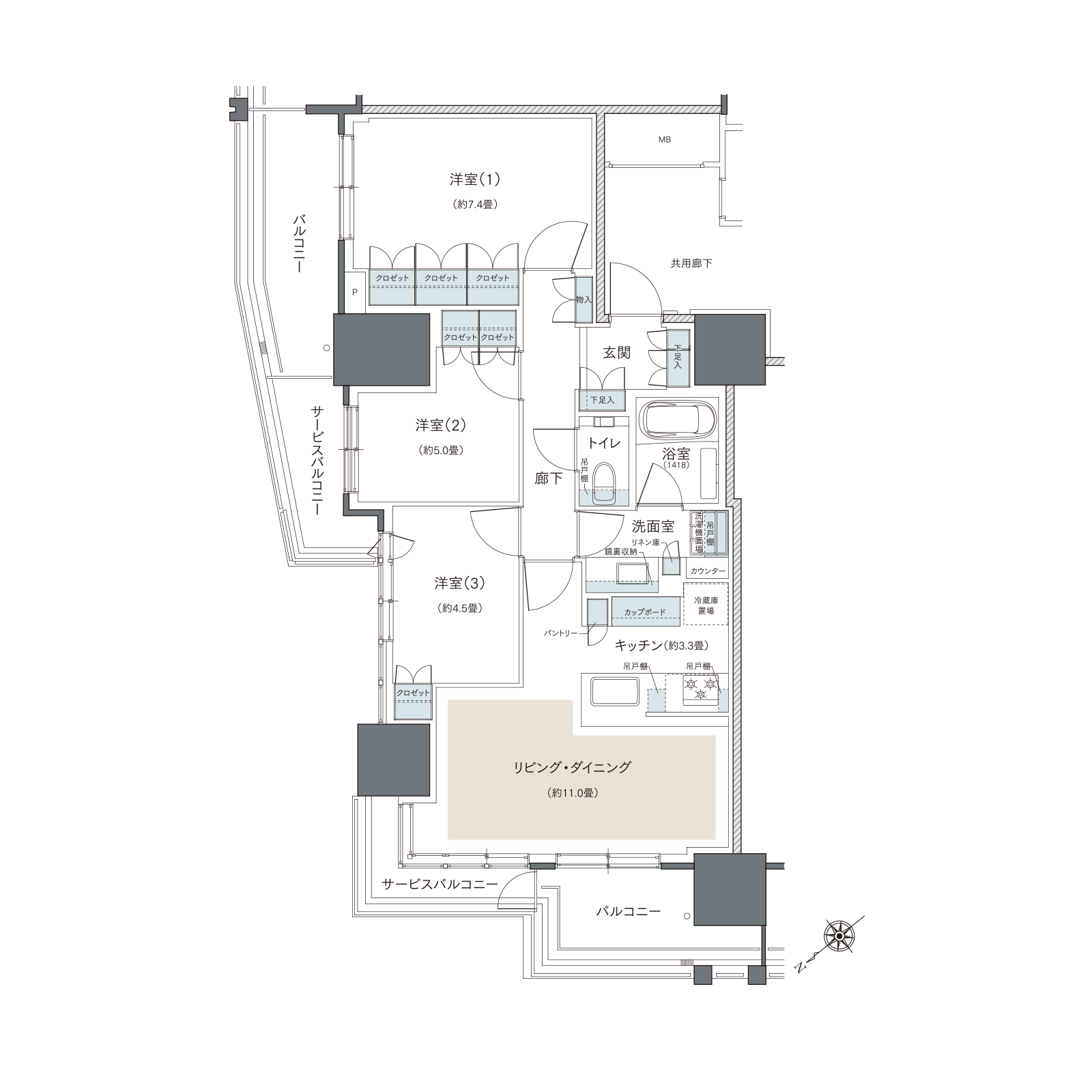
◎コーナーサッシを設けたワイドな横型リビング・ダイニング
◎家族の顔を見ながら料理ができる対面式キッチン
◎洋室(1)には3連のクロゼットを採用し収納力を確保、
リビング・ダイニングから距離をとることで独立性を実現
| プラン | 72P1 Type |
|---|---|
| 間取りタイプ | 3LDK |
| 専有面積 | 72.89㎡ |
| バルコニー面積 | 14.53㎡ |
| サービスバルコニー面積 | 7.64㎡ |
※掲載の間取図は、計画段階の図面を基に描き起こしたもので施工上の都合等により変更が生じる場合があります。最新の図面集でご確認ください。
※洋室(3)は、建築基準法の居室要件を満たすために、床面において50ルクス以上の照度を確保できる照明器具の設置が必要です。
間取り図拡大





建物一覧図
眺望VR
特長
設備一覧