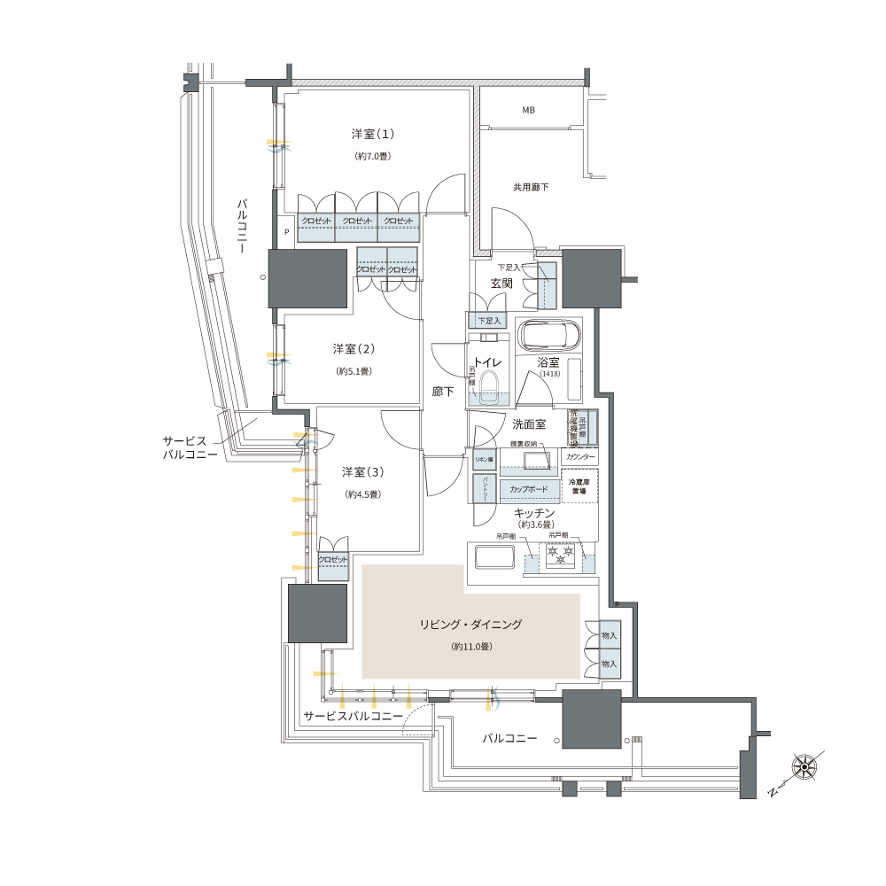
75P2type 3LDK 専有面積 75.49 バルコニー面積 22.20 サービスバルコニー面積 4.75

家具付き図面説明テキスト

セレクトプラン1説明テキスト

特長

心地よい陽光を室内にとりこむ2面採光の3LDK角住戸プラン

◎コーナーサッシを設けたワイドな横型リビング・ダイニング
◎家族の顔を見ながら料理ができる対面式キッチン
◎洋室(1)には3連のクロゼットを採用し収納力を確保、リビング・ダイニングから距離をとることで独立性を実現

概要

プラン 75P2 Type
間取りタイプ 3LDK
専有面積 75.49㎡
バルコニー面積 22.20㎡
サービスバルコニー面積 4.75㎡

※掲載の間取図は、計画段階の図面を基に描き起こしたもので施工上の都合等により変更が生じる場合があります。最新の図面集でご確認ください。

間取り図拡大

建物一覧図

間取り一覧へ戻る
物件エントリー 来場予約

Brillia Tower 浅草柳橋
ご来場予約受付中 
5月下旬より登録受付開始