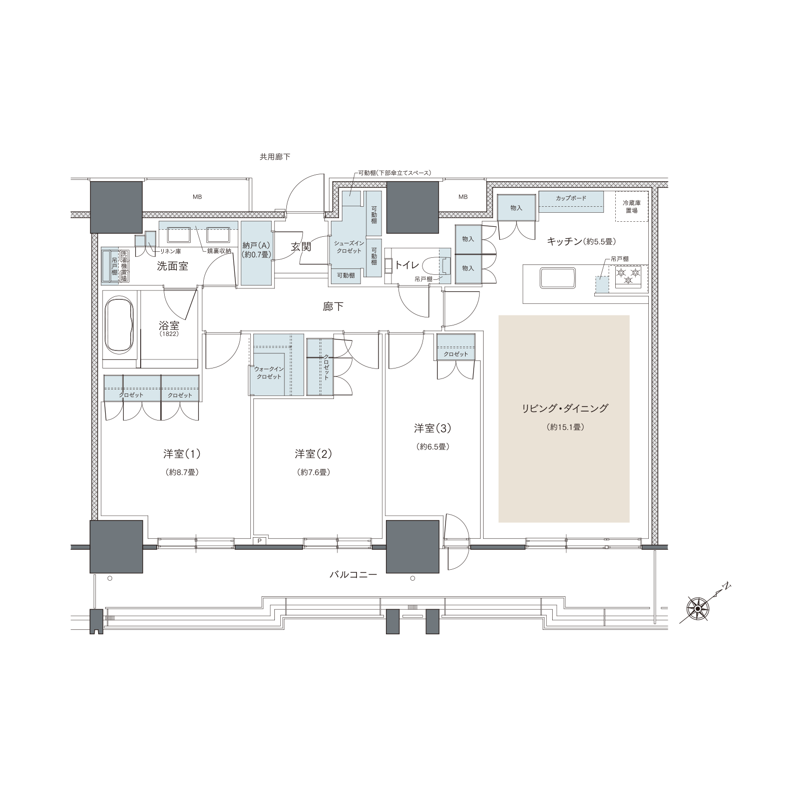
P-103Ytype 3LDK+WIC+SIC+N PREMIUM PLAN 専有面積 103.63 バルコニー面積 21.76

WIC:ウォークインクロゼット SIC:シューズインクロゼット N:納戸

家具付き図面説明テキスト

セレクトプラン1説明テキスト

特長

<プレミアムプラン>
リバービュー眺望が楽しめる南東向き3LDKワイドスパンプラン

◎すべての居室を隅田川向きのバルコニー側にレイアウトしたプラン
◎ゆとりある約5.5畳の対面式キッチンには、豊富な収納スペースをご用意
◎ウォークインクロゼットやシューズインクロゼット、納戸など豊富な収納量を確保

概要

プラン P-103Y Type
間取りタイプ 3LDK+WIC+SIC+N
専有面積 103.63㎡
バルコニー面積 21.76㎡

※掲載の間取図は、計画段階の図面を基に描き起こしたもので施工上の都合等により変更が生じる場合があります。最新の図面集でご確認ください。

間取り図拡大

建物一覧図

間取り一覧へ戻る
物件エントリー 来場予約

Brillia Tower 浅草柳橋
ご来場予約受付中 
5月下旬より登録受付開始