WIC:ウォークインクロゼット N:納戸
家具付き図面説明テキスト
セレクトプラン1説明テキスト
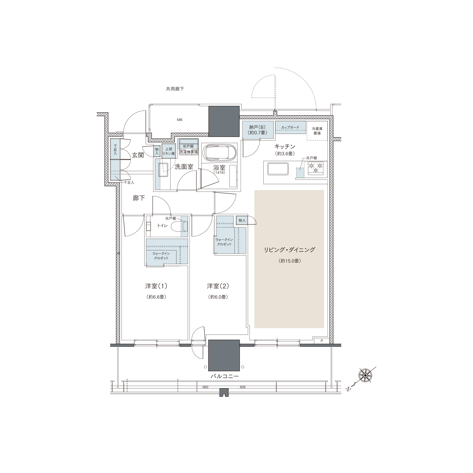
◎リビング・ダイニングと一体的に使える対面式キッチン ◎居住性や開放感を高める全洋室バルコニーに面した設計 ◎全洋室にウォークインクロゼット、キッチンに納戸を備えて収納量を確保
※掲載の間取図は、計画段階の図面を基に描き起こしたもので施工上の都合等により変更が生じる場合があります。最新の図面集でご確認ください。
間取り図拡大
建物一覧図
眺望VR
特長
リビングインの洋室
テキスト
テキストテキストテキストテキストテキストテキストテキストテキストテキストテキスト
テキストテキストテキストテキストテキストテキスト
設備一覧
食器洗い乾燥機
パールクリスタルトップコンロ
テキストが入ります
テキストが入りますテキストが入りますテキストが入ります
パウダールーム1
パウダールーム2
パウダールーム3
パウダールーム4
Brillia Tower 浅草柳橋 ご来場予約受付中 5月下旬より登録受付開始